URGENTES SOLUCIONES EN INFRAESTRUCTURA PARA CESFAM DE PUERTO NATALES, EL PROYECTO QUE BUSCA ALIVIAR LA DEMANDA CRECIENTE POR MÁS Y MEJOR ATENCIÓN.

15 Ago 2025

Comparte

El equipo de SECPLAN de la Municipalidad de Natales, trabaja en la presentación ante el
Gobierno Regional de un proyecto clave para mejorar la infraestructura del Centro de Salud
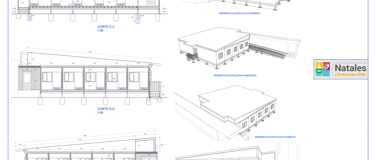
Familiar (CESFAM) Dr. Juan Lozic Pérez. La iniciativa, que busca adquirir e instalar módulos
de emergencia por un total de 180 metros cuadrados, apunta a subsanar el déficit en
infraestructura que afecta la atención de más de 23 mil usuarios del sistema en la comuna.

El CESFAM de Puerto Natales enfrenta una creciente demanda debido al aumento de la
población asistente, lo que ha generado una saturación en sus servicios afectando
directamente la salud de las vecinas y vecinos.

El proyecto, con un costo total de aproximadamente 322 millones de pesos, y que
actualmente se está presentando en busca de que sea financiado a través del Fondo
Nacional de Desarrollo Regional (FNDR), tendría una duración de seis meses, y dado la
urgencia, el equipo espera que este pueda comenzar a finales de este año.

Las implementaciones de estos módulos mejorarán significativamente la capacidad de
respuesta en emergencias y la atención general de la comunidad, una solución que
generaría un alivio importante a la espera de avanzar con la iniciativa de reposición del
nuevo CESFAM, proyecto que impulsa con fuerza la actual administración y que es una
necesidad vital para el fortalecimiento del sistema de salud en Puerto Natales.

El proyecto beneficiará directamente a cerca de 24 mil vecinas y vecinos, además la
magnitud de la obra de 180 m², permitirá descongestionar el actual CESFAM, optimizando
la calidad del servicio en una comuna donde se requiere con urgencia más inversión en el
sector salud.
Daniel Ruiz, Director de SECPLAN de la Municipalidad de Natales, destacó: «Este proyecto
es un paso fundamental para garantizar una atención digna y oportuna a nuestros vecinos.
La instalación de estos módulos no solo resolverá un problema inmediato, sino que también
sentará las bases para un sistema de salud más robusto en el futuro».

La alcaldesa, Ana Mayorga señalo: “Los equipos de salud y desde nuestra gestión, esperamos
el apoyo en esta importante mejora que entregará espacios dignos y seguros para nuestros
funcionarios y que repercutirá directamente en la atención de nuestras vecinas y vecinos”.

Actualmente, el proyecto se encuentra en etapa de perfil, a la espera del Resultado del
Análisis Técnico Económico (RATE) por parte del Ministerio de Desarrollo Social y Familia.
Su aprobación marcaría un hito en la inversión pública en salud para la Región de
Magallanes.